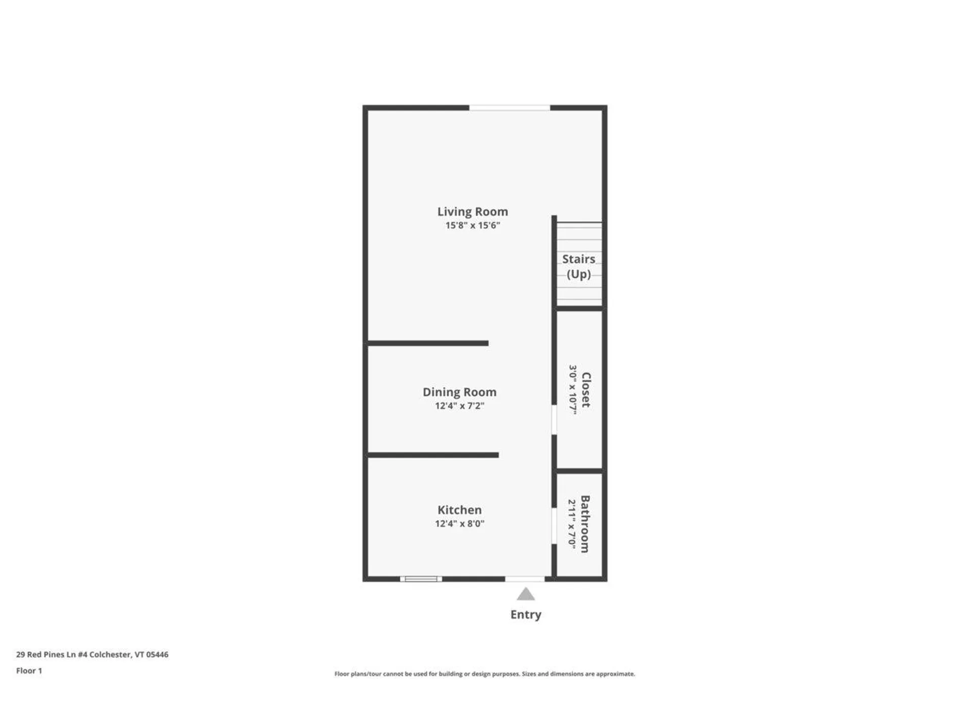
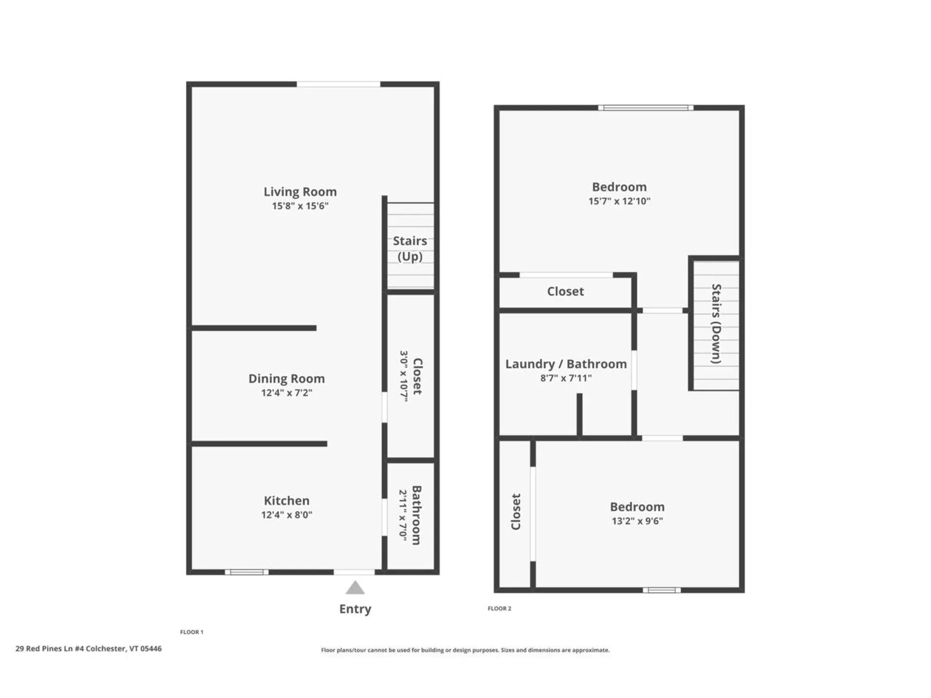
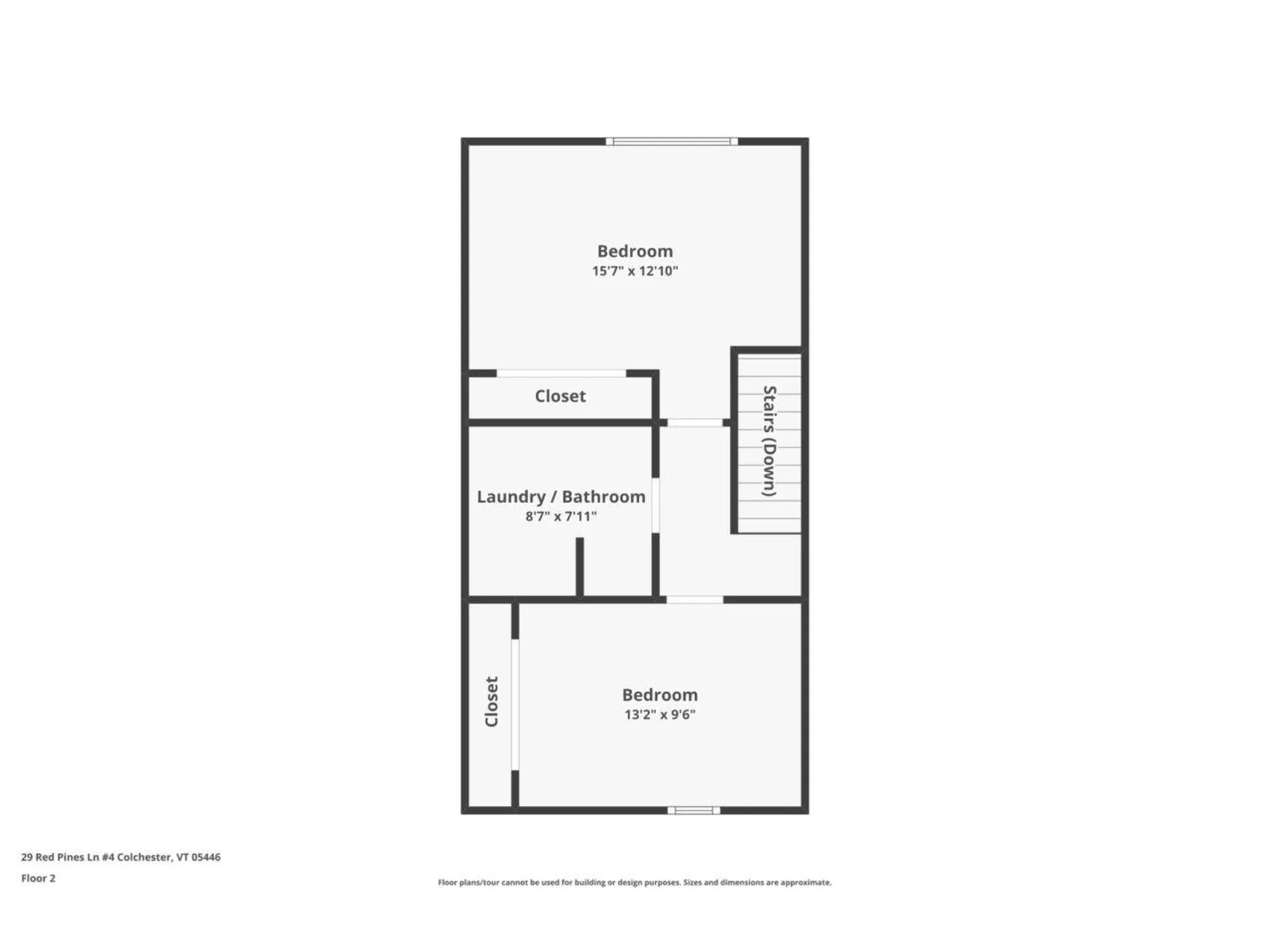
This Colchester townhouse features 2 bedrooms, 1.5 baths, and a well-equipped galley kitchen with a new stove and upgraded fridge plus ample cabinet space, it opens to a dining area then to a spacious sunken living room with a sliding door to a private back patio. Upstairs, you'll find two spacious bedrooms with oversized closets, a full bath with a granite vanity, and convenient second-floor laundry with a stacked washer/dryer. Additional storage can be found on the main level under the stairs and in a secure area in the 1-car garage, perfect for bikes, tires, and more. Enjoy garage parking this winter plus a second parking space directly in front of the condo. Relax in the private back patio area with a small garden space. This condo association is pet friendly and is ideally located near Fanny Allen Hospital, St. Michael's College, and I-89, offering both comfort and convenience.

Listing Tools

More Info

Tax Information

  • Tax Year2024

Rooms

  • Full Bath1

Basic Information

  • List Price$289,900
  • Square Feet1,024
  • StatusSLD
  • Bedrooms2
  • Bathroom2
  • Half Bath1
  • StyleTownhouse
  • New ContructionExisting
  • MLS Number5023760
  • MLS StatusClosed

Location

  • TownColchester
  • StateVT
  • Zip05446
  • CountyChittenden
  • ZoningResidential
  • ComplexRed Pines
  • Flood ZoneUnknown
  • Junior HighColchester Middle School
  • High SchoolColchester High School
  • Address29 Red Pines Lane

Building

  • Disability Features1st Floor 1/2 Bathroom
  • Year Built1982
  • ConstructionWood Frame, Vinyl Siding
  • GarageYes
  • Garage Spaces1
  • Unit Number4
  • Total Rooms5
  • FoundationConcrete Slab

Property

  • AreaVT-Chittenden
  • Property TypeCondo
  • Road FrontageNo
  • DrivewayPaved
  • RoadsNone
  • Lot DescriptionCondo Development

Interior

  • FloorsCarpet, Tile, Vinyl
  • Room 1 Dimensions12' x 8'
  • Room 1 Level1
  • Room 1 TypeKitchen
  • Room 2 Dimensions12' x 7'
  • Room 2 Level1
  • Room 2 TypeDining Room
  • Room 3 Dimensions16' x 15'
  • Room 3 Level1
  • Room 3 TypeLiving Room
  • Interior FeaturesBlinds, Ceiling Fan, Dining Area, Laundry Hook-ups,2nd Floor Laundry
  • Room 4 Dimensions16' x 13'
  • Room 4 Level2
  • Room 4 TypeBedroom
  • Room 5 Dimensions13' x 9'
  • Room 5 Level2
  • Room 5 TypeBedroom
  • Stories2

Exterior

  • Exterior FeaturesGarden Space, Patio, Storage
  • Exterior ColorBrick/Tan
  • RoofShingle

Utilities

  • Elec Co.Green Mountain Power
  • ElectricCircuit Breaker(s)
  • WaterPublic
  • Heating CoolingKerosene, Baseboard, Electric
  • Equipment AppliancesCO Detector, Smoke Detector
  • SewerPublic
  • UtilitiesCable Available

Amenities

  • PricePerSqFt277.34

Other

  • Fee IncludesLandscaping, Plowing, Trash
  • HOA Fee$250
  • Condo Fees$600
  • Date Price Change01/30/2025
  • Taxes$3,707.84
  • Tax Year NotesPrebate
  • FrequencyMonthly
  • Unadjusted TaxesNo
  • SurveyedUnknown
  • SeasonalNo
  • Time ShareNo
  • Span153-048-16832
  • Association AmenitiesMaster Insurance, Landscaping, Snow Removal, Trash Removal
  • Date Listed12/04/2024
  • Delayed ShowingsNo
  • View Count7

Map Location

Listed by Lipkin Audette Team of Coldwell Banker Hickok and Boardman (Off: 802-863-1500)

Listing Sold by Polli Properties
Broker Reciprocity 

Copyright 2025 PrimeMLS, Inc. All rights reserved. This information is deemed reliable, but not guaranteed. The data relating to real estate displayed on this display comes in part from the IDX Program of PrimeMLS. The information being provided is for consumers’ personal, non-commercial use and may not be used for any purpose other than to identify prospective properties consumers may be interested in purchasing. Data last updated November 18, 2025 8:39 AM EST

 

Hi there! How can we help you?

Contact us using the form below or give us a call.

Send Us A Message:

I agree to receive marketing and customer service calls and text messages from Berkshire Hathaway HomeServices Stratton Home. To opt out, you can reply 'stop' at any time or click the unsubscribe link in the emails. Consent is not a condition of purchase. Msg/data rates may apply. Msg frequency varies. Privacy Policy.

Do not fill in this field:

This site is protected by reCAPTCHA and the Google Privacy Policy and Terms of Service apply.

Hi there! How can we help you?

Contact us using the form below or give us a call.

Send Us A Message:

Do not fill in this field:

This site is protected by reCAPTCHA and the Google Privacy Policy and Terms of Service apply.

Hi there! How can we help you?

Contact us using the form below or give us a call.

Send Us A Message:

Do not fill in this field:

This site is protected by reCAPTCHA and the Google Privacy Policy and Terms of Service apply.

Do not fill in this field:

This site is protected by reCAPTCHA and the Google Privacy Policy and Terms of Service apply.

Do not fill in this field:

This site is protected by reCAPTCHA and the Google Privacy Policy and Terms of Service apply.

Do not fill in this field:

This site is protected by reCAPTCHA and the Google Privacy Policy and Terms of Service apply.

$

Do not fill in this field:

This site is protected by reCAPTCHA and the Google Privacy Policy and Terms of Service apply.