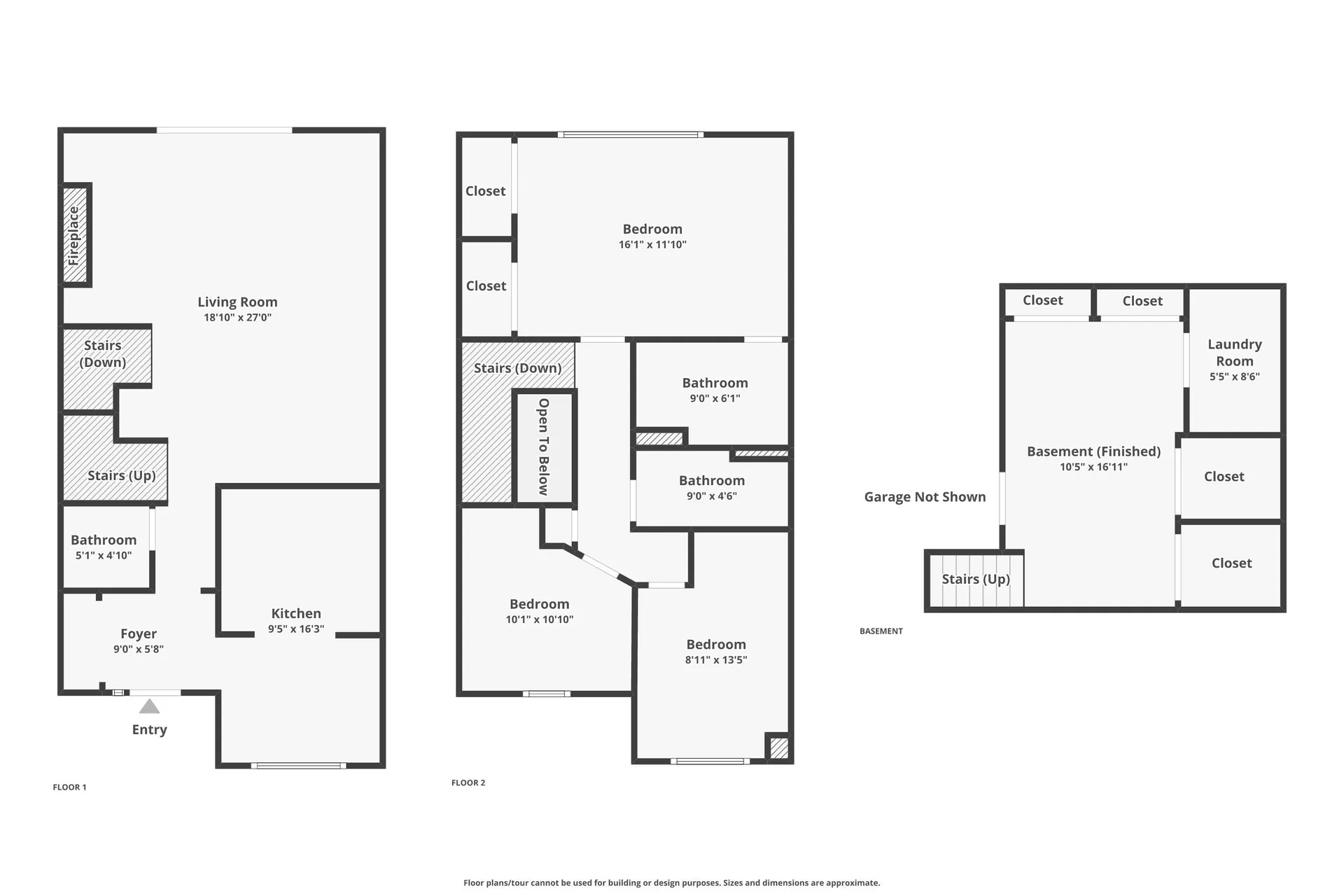
Bright & Updated 3-Bedroom Townhome Near Burlington High School and North Beach. Located in the desirable City Bluffs association, this stylish 3-bedroom, 2.5-bath townhome offers comfort, convenience, and thoughtful updates throughout. Just minutes from Burlington High School, North Beach, the bike path, and downtown, the location blends access to nature with city living. The main level welcomes you with Brazilian Cherry wood floors and a light-filled great room ideal for relaxing or entertaining. The kitchen is both functional and modern, offering generous counter space and room for casual dining. A mini-split system (2020) provides efficient cooling in warmer months. Upstairs, the freshly painted primary suite includes custom closets and a freshly renovated en-suite bath. Two additional bedrooms offer flexibility for guests, work, or hobbies. The finished lower level adds even more versatility with a bonus room and custom storage. Outdoor spaces include a private front patio and a rear deck-both perfect for morning coffee or quiet evenings. An oversized attached garage includes an EV charger, and the association covers exterior maintenance for ease of living. Additional upgrades include newer windows and sliding glass doors, a newer hot water heater, custom closets, and updated basement flooring. This is a rare opportunity to own a 3-bedroom home in this sought-after Burlington location.

Listing Tools

More Info

Tax Information

  • Tax Year2025

Rooms

  • Full Bath2

Basic Information

  • List Price$520,000
  • Virtual TourView Tour
  • Square Feet1,800
  • StatusACT
  • Bedrooms3
  • Bathroom3
  • Half Bath1
  • StyleTownhouse
  • New ContructionExisting
  • MLS Number5066225
  • MLS StatusActive

Location

  • TownBurlington
  • StateVT
  • Zip05408
  • CountyChittenden
  • Zoningresidential
  • ResortNo
  • ComplexCity Bluff
  • DistrictBurlington School District
  • Flood ZoneNo
  • Elementary SchoolAssigned
  • Junior HighAssigned
  • High SchoolBurlington High School
  • Address602 North Avenue

Building

  • Year Built1988
  • ConstructionWood Frame, Vinyl Exterior
  • GarageYes
  • Garage Spaces2
  • Unit Number8
  • Total Rooms7
  • FoundationPoured Concrete

Property

  • AreaVT-Chittenden
  • Property TypeCondo
  • Road FrontageNo
  • DrivewayPaved
  • RoadsAssociation, Private Road
  • Lot DescriptionCondo Development

Interior

  • FloorsCarpet, Ceramic Tile, Hardwood
  • Room 1 Dimensions16'1x11'10
  • Room 1 Level2
  • Room 1 TypeBedroom
  • Room 2 Dimensions10'1x10'10
  • Room 2 Level2
  • Room 2 TypeBedroom
  • Room 3 Dimensions8'11x13'5
  • Room 3 Level2
  • Room 3 TypeBedroom
  • Interior FeaturesBlinds, Ceiling Fan, Dining Area, Gas Fireplace, Living/Dining, Natural Light
  • Room 4 Dimensions9'x6'1
  • Room 4 Level2
  • Room 4 TypeBathroom Full
  • Room 5 Dimensions9'x4'6
  • Room 5 Level2
  • Room 5 TypeBathroom Full
  • Room 6 Dimensions9'5x16'3
  • Room 6 Level1
  • Room 6 TypeKitchen
  • Room 7 Dimensions18'10x27
  • Room 7 Level1
  • Room 7 TypeLiving/Dining
  • Room 8 Dimensions5'1x4'10
  • Room 8 Level1
  • Room 8 TypeBathroom Half
  • Room 9 Dimensions10'5x16'11
  • Room 9 LevelBasement
  • Room 9 TypeBonus Room
  • Room 10 Dimensions9'x5'8
  • Room 10 Level1
  • Room 10 TypeFoyer
  • BasementFinished
  • Stories2

Exterior

  • Exterior FeaturesDeck, Patio
  • Exterior Colortan
  • RoofAsphalt Shingle

Utilities

  • Elec Co.Burlington Electric
  • ElectricCircuit Breaker(s)
  • WaterPublic
  • Heating CoolingNatural Gas
  • Equipment AppliancesWindow AC, HW/Batt Smoke Detector
  • SewerPublic
  • UtilitiesPhone, Cable, Gas On-Site

Amenities

  • PricePerSqFt288.89

Water Body

  • Water AccessNo
  • Water ViewNo

Other

  • Fee IncludesLandscaping, Plowing, Trash, Condo Association Fee
  • HOA Fee$479
  • Date Price Change11/11/2025
  • Taxes$7,113.2
  • Tax Year Notes25/26
  • FrequencyMonthly
  • Unadjusted TaxesNo
  • SurveyedUnknown
  • SeasonalNo
  • Time ShareNo
  • Span114-035-13569
  • Association AmenitiesMaster Insurance, Landscaping, Snow Removal, Trash Removal
  • Date Listed10/17/2025
  • Delayed ShowingsNo

Map Location

Listed by Julie Danaher of Ridgeline Real Estate
Broker Reciprocity 

Copyright 2025 PrimeMLS, Inc. All rights reserved. This information is deemed reliable, but not guaranteed. The data relating to real estate displayed on this display comes in part from the IDX Program of PrimeMLS. The information being provided is for consumers’ personal, non-commercial use and may not be used for any purpose other than to identify prospective properties consumers may be interested in purchasing. Data last updated November 11, 2025 8:38 PM EST

 

Hi there! How can we help you?

Contact us using the form below or give us a call.

Send Us A Message:

I agree to receive marketing and customer service calls and text messages from Berkshire Hathaway HomeServices Stratton Home. To opt out, you can reply 'stop' at any time or click the unsubscribe link in the emails. Consent is not a condition of purchase. Msg/data rates may apply. Msg frequency varies. Privacy Policy.

Do not fill in this field:

This site is protected by reCAPTCHA and the Google Privacy Policy and Terms of Service apply.

Hi there! How can we help you?

Contact us using the form below or give us a call.

Send Us A Message:

Do not fill in this field:

This site is protected by reCAPTCHA and the Google Privacy Policy and Terms of Service apply.

Hi there! How can we help you?

Contact us using the form below or give us a call.

Send Us A Message:

Do not fill in this field:

This site is protected by reCAPTCHA and the Google Privacy Policy and Terms of Service apply.

Do not fill in this field:

This site is protected by reCAPTCHA and the Google Privacy Policy and Terms of Service apply.

Do not fill in this field:

This site is protected by reCAPTCHA and the Google Privacy Policy and Terms of Service apply.

Do not fill in this field:

This site is protected by reCAPTCHA and the Google Privacy Policy and Terms of Service apply.

$

Do not fill in this field:

This site is protected by reCAPTCHA and the Google Privacy Policy and Terms of Service apply.