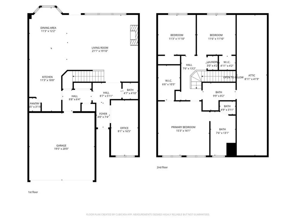
Welcome to this beautifully maintained 3-bedroom, 2.5-bath townhouse in the highly desirable Heatherfield neighborhood of South Burlington. Thoughtfully designed and filled with natural light, this inviting home offers bright, open living spaces and tasteful updates throughout. The main level features an expansive living room with gleaming hardwood floors and a cozy gas fireplace, seamlessly connected to the dining area where bay windows brighten the space. The well-appointed kitchen includes warm wood cabinetry, granite countertops, tile flooring, and generous storage-perfect for everyday cooking or entertaining. A convenient half bath and a dedicated home office complete the first floor, offering flexibility for today's work-from-home lifestyle. Upstairs, the spacious primary bedroom includes a private en suite bath and ample closet space. Two additional bedrooms, a full bath, and a second-floor laundry area ensure comfort and convenience for family or guests. Additional highlights include an attached garage, abundant storage, and a private rear patio ideal for relaxing or summer grilling, surrounded by mature landscaping that creates a peaceful outdoor retreat. Ideally located close to shopping, dining, parks, recreation paths, and major employers, this home offers low-maintenance living in an unbeatable South Burlington location. A wonderful opportunity to own in one of the area's most sought-after communities.

Listing Tools

More Info

Tax Information

  • Tax Year2026

Rooms

  • Full Bath2

Basic Information

  • List Price$625,000
  • Square Feet2,224
  • StatusACT
  • Bedrooms3
  • Bathroom3
  • Half Bath1
  • StyleTownhouse
  • New ContructionExisting
  • MLS Number5074720
  • MLS StatusActive

Location

  • TownSouth Burlington
  • StateVT
  • Zip05403
  • CountyChittenden
  • ZoningResidential
  • ComplexHeatherfield
  • DistrictSouth Burlington Sch Distict
  • Flood ZoneNo
  • Elementary SchoolRick Marcotte Central School
  • Junior HighFrederick H. Tuttle Middle Sch
  • High SchoolSo. Burlington High School
  • Address186 Hummingbird Lane

Building

  • Year Built2005
  • ConstructionWood Frame, Vinyl Siding
  • GarageYes
  • Garage Spaces2
  • Total Rooms7
  • FoundationConcrete, Slab w/ Frost Wall

Property

  • AreaVT-Chittenden
  • Property TypeCondo
  • Road FrontageTBD
  • DrivewayPaved
  • RoadsPaved, Public
  • Lot DescriptionCondo Development, Curbing, Landscaped, Recreational, Street Lights, Trail/Near Trail, Walking Trails, Wooded, Near Paths, Neighborhood, Near Public Transportatn

Interior

  • FloorsHardwood, Tile
  • Interior FeaturesBar, Gas Fireplace,1 Fireplace, Primary BR w/ BA, Walk-in Closet, Walk-in Pantry,2nd Floor Laundry
  • Stories2

Exterior

  • Exterior FeaturesNatural Shade, Patio
  • Exterior ColorBeige
  • RoofArchitectural Shingle

Utilities

  • Elec Co.Green Mountain Power
  • ElectricCircuit Breaker(s)
  • WaterPublic
  • Heating CoolingNatural Gas, Hot Air, Multi Zone
  • Equipment AppliancesCO Detector, HW/Batt Smoke Detector
  • SewerPublic
  • UtilitiesCable

Amenities

  • PetsYes
  • PricePerSqFt281.03

Other

  • Fee IncludesLandscaping, Plowing, Trash
  • HOA Fee$329
  • Date Price Change01/22/2026
  • Taxes$9,210.21
  • FrequencyMonthly
  • Unadjusted TaxesNo
  • SurveyedNo
  • SeasonalNo
  • Time ShareNo
  • Span600-188-17257
  • Association AmenitiesBuilding Maintenance, Master Insurance, Landscaping, Common Acreage, Snow Removal, Trash Removal
  • Date Listed01/22/2026
  • View Count3

Map Location

Listed by Robert Foley of Flat Fee Real Estate
Broker Reciprocity 

Copyright 2026 PrimeMLS, Inc. All rights reserved. This information is deemed reliable, but not guaranteed. The data relating to real estate displayed on this display comes in part from the IDX Program of PrimeMLS. The information being provided is for consumers’ personal, non-commercial use and may not be used for any purpose other than to identify prospective properties consumers may be interested in purchasing. Data last updated February 14, 2026 8:54 PM EST

 

Hi there! How can we help you?

Contact us using the form below or give us a call.

Send Us A Message:

I agree to receive marketing and customer service calls and text messages from Berkshire Hathaway HomeServices Stratton Home. To opt out, you can reply 'stop' at any time or click the unsubscribe link in the emails. Consent is not a condition of purchase. Msg/data rates may apply. Msg frequency varies. Privacy Policy.

Do not fill in this field:

This site is protected by reCAPTCHA and the Google Privacy Policy and Terms of Service apply.

Hi there! How can we help you?

Contact us using the form below or give us a call.

Send Us A Message:

Do not fill in this field:

This site is protected by reCAPTCHA and the Google Privacy Policy and Terms of Service apply.

Hi there! How can we help you?

Contact us using the form below or give us a call.

Send Us A Message:

Do not fill in this field:

This site is protected by reCAPTCHA and the Google Privacy Policy and Terms of Service apply.

Do not fill in this field:

This site is protected by reCAPTCHA and the Google Privacy Policy and Terms of Service apply.

Do not fill in this field:

This site is protected by reCAPTCHA and the Google Privacy Policy and Terms of Service apply.

Do not fill in this field:

This site is protected by reCAPTCHA and the Google Privacy Policy and Terms of Service apply.

$

Do not fill in this field:

This site is protected by reCAPTCHA and the Google Privacy Policy and Terms of Service apply.