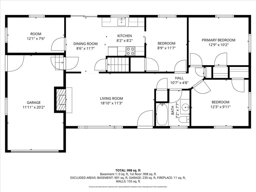
Single-level living in South Burlington with a fully fenced-in backyard, recent updates, and a convenient location close to schools, shopping, dining, UVM and everyday amenities. This charming ranch sits on a .29-acre city lot and offers comfortable living space along with several thoughtful improvements. Step inside to a bright and welcoming living room featuring beautifully refinished hardwood flooring that flows down the hallway and into the bedrooms, adding warmth and character throughout the home. The updated kitchen features newer cabinetry and countertops, along with an electric range, microwave, refrigerator, dishwasher, and butcher block workspace that adds both function and style. Just off the kitchen, the dining area includes sliding doors that open directly to the large backyard and garden, making outdoor dining and entertaining easy. The main level includes two spacious bedrooms, a full bathroom, formal dining room, plus a flexible bonus room perfect for a den, workout space or home office. A convenient door from the kitchen leads directly to the attached one-car garage with an automatic garage door. The full basement provides a large, dry, open storage area with a washer-dryer, workshop and hobby area. Outside, the fully fenced backyard offers privacy and space for gardening, pets, and outdoor enjoyment, along with a large storage shed for tools and equipment. Perennial plants include raspberries, blackberries, sage, thyme, oregano, mint, wild mustard greens and asparagus. Recent home improvements include a newer heating system, hot water heater, attic insulation, roof, driveway, fence, garden beds and shed. Natural gas heat, public water, and public sewer add efficiency and convenience. Move-in ready and ideally located, this home offers a great opportunity to enjoy comfortable living in one of South Burlington's most desirable communities.

Listing Tools

More Info

Tax Information

  • Tax Year2025

Parking

  • Parking Spaces1
  • GarageYes

Rooms

  • Full Bath1

Basic Information

  • MLS Number5080507
  • MLS StatusPending
  • Virtual TourView Tour
  • StatusPEN
  • Property TypeSingle Family
  • List Price$425,000
  • Listing Agent NameDaniel Titus
  • Broker NameFlex Realty

Location

  • Building Number9
  • StreetBerkley Street
  • TownSouth Burlington
  • StateVT
  • Zip05403
  • CountyChittenden
  • DistrictSouth Burlington Sch Distict
  • Elementary SchoolChamberlin School
  • Junior HighFrederick H. Tuttle Middle Sch
  • High SchoolSouth Burlington High School
  • Flood Zone Y/NNo
  • Address9 Berkley Street

Building

  • Year Built1961
  • Building ConstructionWood Frame
  • ConstructionExisting
  • Property StyleRanch
  • Bedrooms2
  • Bathroom1
  • Total Baths1
  • Total Rooms6
  • Square Feet1,040
  • APX Unfin Below Grade936
  • BasementConcrete Floor, Full, Interior Stairs, Storage Space, Unfinished, Interior Access
  • FoundationBlock

Property

  • Acreage0.29
  • Lot DescriptionCity Lot
  • AreaVT-Chittenden
  • DrivewayPaved
  • RoadsPublic Maintained Road
  • Road Frontage73

Interior

  • Interior FeaturesDining Area, Wood Fireplace, Kitchen/Dining, Laundry Hook-ups, Basement Laundry
  • Room 1 TypeLiving Room
  • Room 1 Level1
  • FloorsHardwood, Vinyl
  • Room 2 TypeDining Room
  • Room 2 Level1
  • Room 3 TypeKitchen
  • Room 3 Level1
  • Room 4 TypeBedroom
  • Room 4 Level1
  • Room 5 TypeBedroom
  • Room 5 Level1
  • Stories1
  • Room 6 TypeBonus Room
  • Room 6 Level1

Exterior

  • Exterior FeaturesFull Fence, Garden Space, Shed
  • Exterior ColorBlue
  • RoofArchitectural Shingle

Utilities

  • Heat SystemNatural Gas, Hot Air
  • WaterPublic
  • SewerPublic
  • ElectricCircuit Breaker(s)
  • UtilitiesOther

Amenities

  • PricePerSqFt408.65

Other

  • SeasonalNo
  • Page86-87
  • Date Listed03/24/2026
  • View Count1

Map Location

Listed by Daniel Titus of Flex Realty
Broker Reciprocity 

Copyright 2026 PrimeMLS, Inc. All rights reserved. This information is deemed reliable, but not guaranteed. The data relating to real estate displayed on this display comes in part from the IDX Program of PrimeMLS. The information being provided is for consumers’ personal, non-commercial use and may not be used for any purpose other than to identify prospective properties consumers may be interested in purchasing. Data last updated April 11, 2026 3:37 AM EDT

 

Hi there! How can we help you?

Contact us using the form below or give us a call.

Send Us A Message:

I agree to receive marketing and customer service calls and text messages from Berkshire Hathaway HomeServices Stratton Home. To opt out, you can reply 'stop' at any time or click the unsubscribe link in the emails. Consent is not a condition of purchase. Msg/data rates may apply. Msg frequency varies. Privacy Policy.

Do not fill in this field:

This site is protected by reCAPTCHA and the Google Privacy Policy and Terms of Service apply.

Hi there! How can we help you?

Contact us using the form below or give us a call.

Send Us A Message:

Do not fill in this field:

This site is protected by reCAPTCHA and the Google Privacy Policy and Terms of Service apply.

Hi there! How can we help you?

Contact us using the form below or give us a call.

Send Us A Message:

Do not fill in this field:

This site is protected by reCAPTCHA and the Google Privacy Policy and Terms of Service apply.

Do not fill in this field:

This site is protected by reCAPTCHA and the Google Privacy Policy and Terms of Service apply.

Do not fill in this field:

This site is protected by reCAPTCHA and the Google Privacy Policy and Terms of Service apply.

Do not fill in this field:

This site is protected by reCAPTCHA and the Google Privacy Policy and Terms of Service apply.

$

Do not fill in this field:

This site is protected by reCAPTCHA and the Google Privacy Policy and Terms of Service apply.